Technical drawings, sketches & models

ONG model

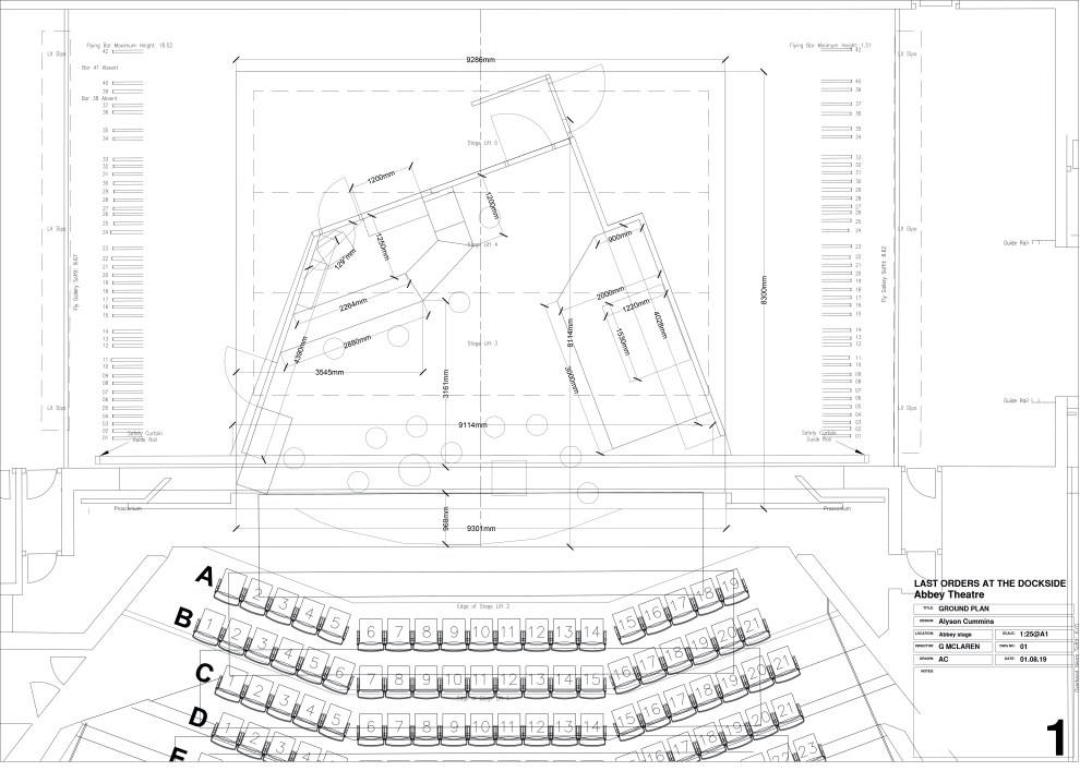
Last orders

Layout1

Drawing

Untitled

Colleen Bawn sketch

lighthouse

At The Ford: act 1

At The Ford: act 2

Night Alive

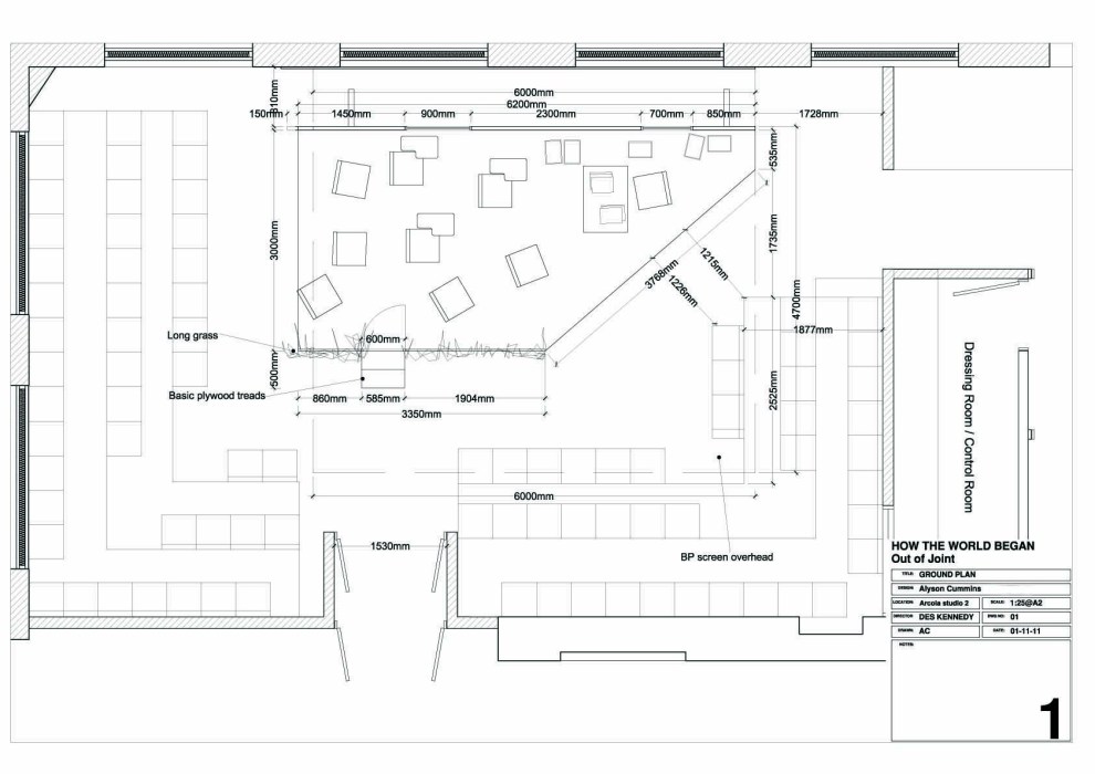
How the world began plan

How the world began section

Hamlet plan

colleenbawn sketch

colleen bawn sketch

Dying city sketch1

Through a film darkly storyboard

No escape sketch

No escape sketch

No escape storyboard

Serious money sketch

Serious Money sketch

Serious money sketch

vixenowl

vixenpriest

vixenhen

pervesc7

pervesc9

seriousmoney

Dying city model

offplan